(519) 564-7137

broker agent

474 COUNTY RD 50 East - $649,000

Grocery Stores
Schools
Restaurants
Gas Stations
Banks
Parks
Transit
Police
Fire Station
Place of Worship
Please select an amenity above to view a list.

474 COUNTY RD 50 East,Harrow - $649,000 - Directions


  Request Information    Mortgage Calculator    Get Listing Brochure    Return to Listings  

Property Specs:

Listing ID25018680
Address474 COUNTY RD 50 East
CityHarrow, ON
Price$649,000
Bed / Bath4 / 2 Full
ConstructionAluminum/Vinyl
FlooringCarpeted, Ceramic/Porcelain, Hardwood, L…
Land Size70.62 X IRREG
TypeHouse
StatusFor sale

Extended Features:

Appliances Cooktop, Dishwasher, Dryer, Oven, Refrigerator, WasherFeatures Double width or more driveway, Front Driveway, Golf course/parkland, Paved driveway, Side DrivewayOwnership FreeholdCooling Central air conditioningFoundation BlockHeating Forced air, FurnaceHeating Fuel Electric, Natural gas

Details:

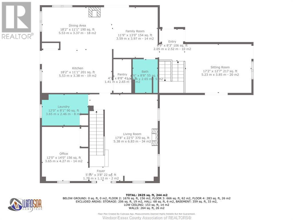
Spacious family home in Oxley, the middle of Essex County's wine region. Large country lot with views over open fields. Lot dimensions: 70.62""X 180.43'X 109.56'X 138.60'. Primary bedroom has a beamed ceiling and large walk-in closet. Finished attic space with dual aspect natural light. The great room is flexible living space with vaulted ceiling, deck off the patio doors and outside entrance. Each level has ample storage areas. The corner lot provides one driveway off County Road 50 East with carport and 2nd driveway with access to the garage from Bell Road. Treed lot and large garden shed. Golf course, marina and five wineries within close proximity. (id:4555)

LISTING OFFICE:
Manor Realty Ltd. Brokerage, Doug Wickham, ASA

Comments / Live Discussion



Have a Question?


Loading...