(519) 564-7137

broker agent

131 PARK STREET - $699,900

Grocery Stores
Schools
Restaurants
Gas Stations
Banks
Parks
Transit
Police
Fire Station
Place of Worship
Please select an amenity above to view a list.

131 PARK STREET,Amherstburg - $699,900 - Directions


  Request Information    Mortgage Calculator    Get Listing Brochure    Return to Listings  

Property Specs:

Listing ID25020674
Address131 PARK STREET
CityAmherstburg, ON
Price$699,900
Bed / Bath2 / 2 Full, 1 Half
StyleRaised Ranch w/ Bonus Room
ConstructionAluminum/Vinyl, Brick
FlooringCushion/Lino/Vinyl
Land Size35 X 100 FT
TypeHouse
StatusFor sale

Extended Features:

Features Front DrivewayOwnership FreeholdCooling Central air conditioningFoundation ConcreteHeating Forced airHeating Fuel Natural gas

Details:

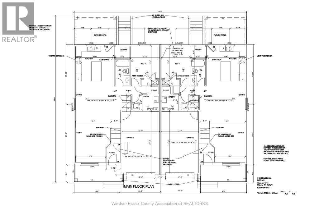
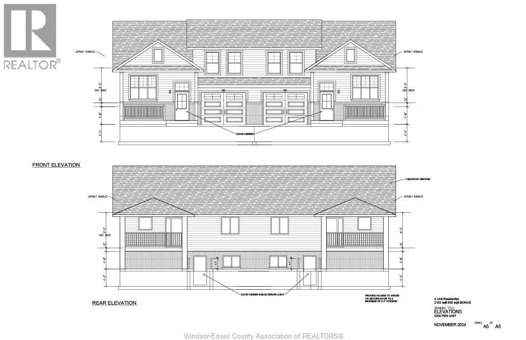
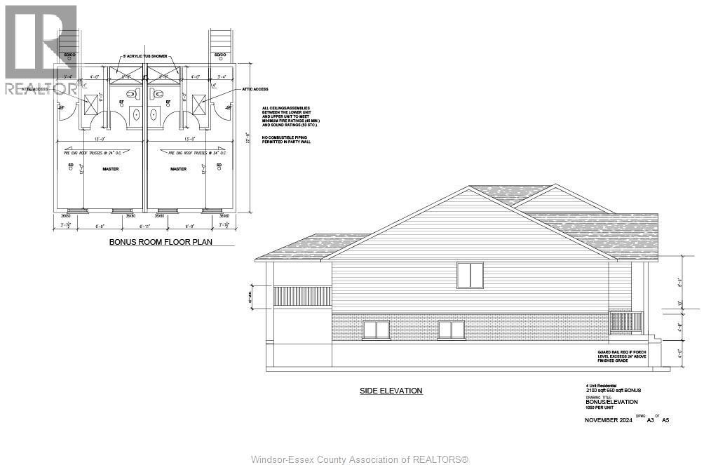
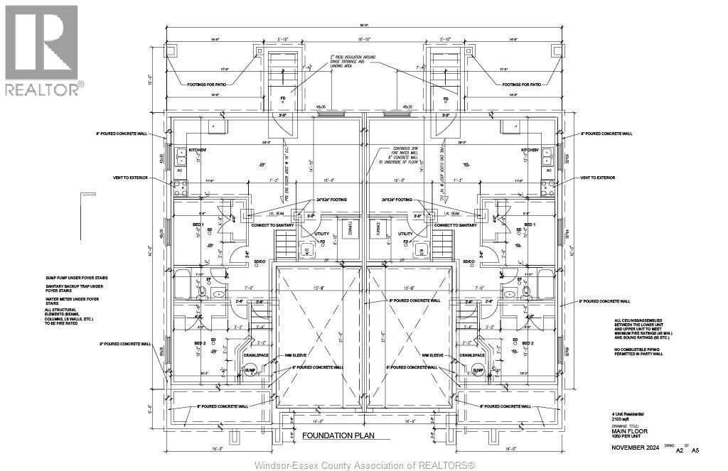
Brand new to be built raised ranch semi with master bedroom bonus suite in the heart of the downtown core. Main floor consists of approx. 1700 sq ft with 2nd floor master bedroom suite, ensuite bath and walk in closet, open concept living and kitchen areas and patio doors leading to sundeck. Full Basement with full sized windows ideal for additional and bright living space. TWO (2) Grade entrances (one from the garage and one leading to the back yard) . Ideal location within walking distance to Navy Yard Park, stores and shopping and the downtown core of Amherstburg. Call for more information and for detailed floor plans. (id:4555)

LISTING OFFICE:
RE/MAX Preferred Realty Windsor, Kim Wheeler

Comments / Live Discussion



Have a Question?


Loading...